| NIVEAU | PIÈCE | SURFACE |
Prix 86 400 €
Local commercial - 86 400 €
BEZIERS (34500)
Ref 342401839
Ref 676
- 100 m²
- 3 pièce(s)
- NC chambre(s)
- NC
MURS COMMERCIAUX - Venez découvrir cette boutique en plein coeur de ville. Ce bien est idéalement situé à proximité de la place Jean Jaurès
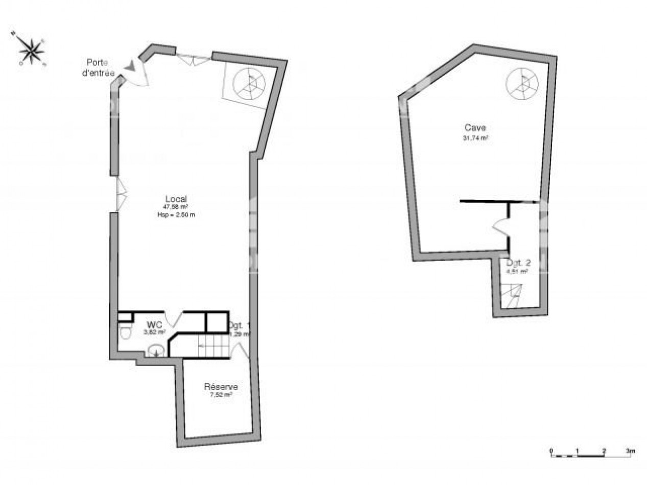
Le local est composé d'une boutique de 49m2 avec un point d'eau et une arrière boutique de 7m2 ainsi que d'un sous-sol de 31m2. Quelques travaux sont à prévoir.
Il est actuellement loué (750euros charges comprises.) jusqu'à fin Octobre.
Possibilité
Bail tous commerces hors restauration.
Les informations sur les risques auxquels ce bien est exposé sont disponibles sur le site Géorisques
Notre barème d'honoraires
Ce bien ne figure plus au catalogue car il est sous compromis.
Diagnostics de performance énergétique
Voir le descriptif des pièces
À proximité de ce bien ...
Plus d'informations sur ce bien
Découvrez nos biens similaires ...







