| NIVEAU | PIÈCE | SURFACE |
Prix 107 000 € *
Remise en pierre - 107 000 € *
SAINT GENIES DE FONTEDIT (34480)
Ref 342402108
Ref 975
- 192 m²
- 4 pièce(s)
- 3 chambre(s)
- 210 m²
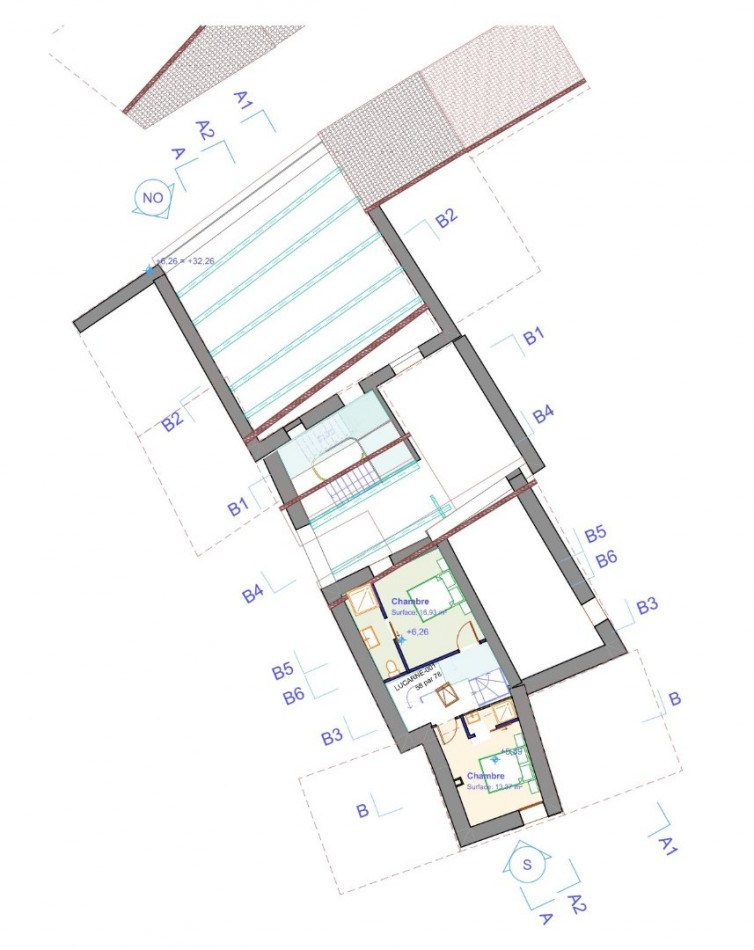
Authentique remise agricole de 190 m² avec une partie de la toiture neuve et permis de construire déjà accordé.
Un bien rare, au cœur du village de Saint-Génies-de-Fontedit, offrant un fort potentiel de transformation en habitation de caractère.
Charme de la pierre
Projet de rénovation accepté
Environnement calme, proche Béziers et commodités.
Une belle opportunité pour donner vie à votre projet dans un cadre unique.
Les informations sur les risques auxquels ce bien est exposé sont disponibles sur le site Géorisques
Notre barème d'honoraires
* Honoraires charge vendeur.
Diagnostics de performance énergétique
Voir le descriptif des pièces
À proximité de ce bien ...
Plus d'informations sur ce bien
Découvrez nos biens similaires ...



















